Реализация объекта недвижимости приостановлена

Информация об помещении

1
Этаж

Состояние и оснащение

Количество этажей
1
Развернуть

Склад в Тамбовская область, Рассказово Тамбовская ул., 61А (1700 м)

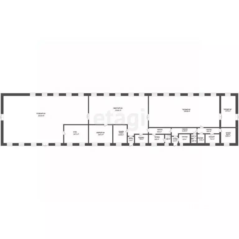
Помещения свободного назначения Предлагаются к продаже два отдельно стоящих здания с площадью помещений 1000 кв. метров и 700 кв. метров , расположенных на земельном земельном участке площадью 1834 кв. метра.Адрес - Тамбовская область, город. Рассказово, улица. Тамбовская 61A. Большое количество помещений как административного назначения ( кабинеты ) подсобные помещения ( санузел) , так и и просторных производственных или складских помещений с высокими потоками . Пандус для разгрузки Здания в хорошем состоянии Крыша не протекает Электропроводка менялась пять лет назад ( ранее было производство ) Твердотопливные котлы на отопление ( газ рядом) Въезд на территорию по асфальтированной дороге Причина продажи переезд на постоянное место жительство в другой регион . Стоимость всех объектов недвижимости - практически равна суммарной кадастровой стоимости . Торг обсуждается . Звоните , пишите в чат Согласуем время показа . Специалист по недвижимости АН Этажи / ТамбовВоякин Анатолий Код пользователя: 39527Номер в базе: 9788375

Читать полностью

    Реализация объекта недвижимости приостановлена

    Не нашли подходящего объявления?

    Оставьте заявку, и наши риэлторы подберут склад в районе Рассказово

    (0)