Россия, Тамбовская область, Тамбов, ул. Имени Павла Строганова,

Реализация объекта недвижимости приостановлена

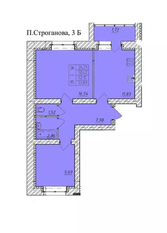
Информация о квартире

53.0 м2
Площадь
26.0 м2
Жилая
11.0 м2
Кухня
2
Комнаты
8
Этаж
9
Этажность

Дополнительная информация

Тип дома
кирпичный
Развернуть

2-к кв. Тамбовская область, Тамбов ул. Имени Павла Строганова, 3Б ...

Уютная двухкомнатная квартира на севере города . Индивидуальное отопление ,машинная стяжка пола . Отличное расположение , в шаговой доступности школа , детские сады, новая поликлиника. Показ в удобное для вас время.

Читать полностью

    Реализация объекта недвижимости приостановлена

    Не нашли подходящего объявления?

    Оставьте заявку, и наши риэлторы подберут квартиру в новостройке в районе Тамбова

    (0)