Реализация объекта недвижимости приостановлена

Информация о квартире

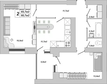
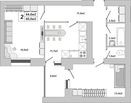
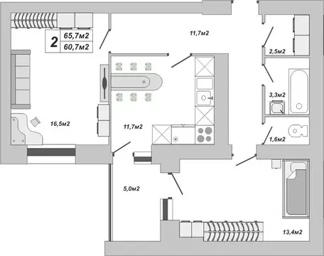
62.0 м2
Площадь
30.0 м2
Жилая
12.0 м2
Кухня
2
Комнаты
7
Этаж
9
Этажность

Дополнительная информация

Тип дома
кирпичный
Развернуть

2-к кв. Тамбовская область, Тамбов ул. Научная, 14Б (62.75 м)

продаётся квартира с оптимальной площадью (62,7м2 и лоджия 3,1м2) и популярной планировкой распашонка (окна на две стороны) в кирпичном жилом доме в ЖК Рахманинов. . Качественная черновая отделка, индивидуальное отопление, окна ПВХ (VEKA, стеклопакет STIS энергосберегающий) и застекленная лоджия. Жилой комплекс Рахманинов расположен в районе с развитой инфраструктурой с важными социальными объектами: поликлиникой, школой, колледжами, университетом, спортивным комплексом, торговыми центрами, гипермаркетами, предусмотрено строительство детского сада на 150 мест. Здесь вы найдете все, что необходимо для комфортной жизни: , парковки, удобную логистику, детские площадки и спортивные зоны. Передача квартир запланирована на декабрь 2025года Спешите стать обладателями новой квартиры уже в этом году Звоните Расскажем, обсудим, оформим

Читать полностью

    Реализация объекта недвижимости приостановлена

    Не нашли подходящего объявления?

    Оставьте заявку, и наши риэлторы подберут квартиру в новостройке в районе Тамбова

    (0)