50 000 000 Р 652 500 $ или 552 000

Информация о помещении и здании

2
Этаж
2
Этажность
Развернуть
Агент
+7 (915) 881-03-42
Начать чат с агентом

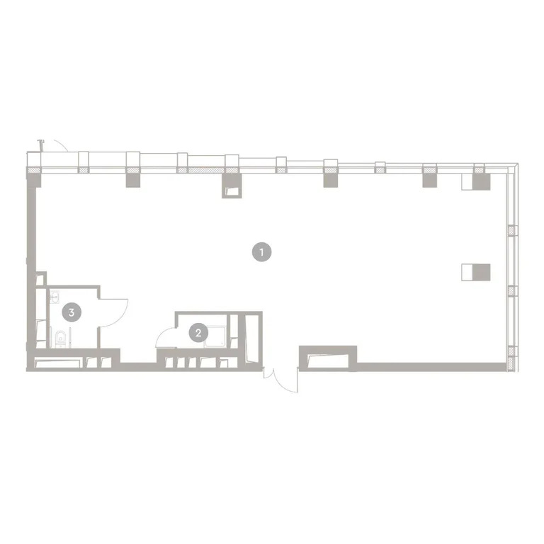
Офис в Тамбовская область, Тамбов проезд Монтажников, 6А (756 м)

id:395. Вашему вниманию представляется прекрасное предложение коммерческой недвижимости - бизнес-центр в городе Тамбов. Расположенный по адресу Монтажников проезд, этот офисный комплекс является отличным выбором для тех, кто ищет надежное место для работы.Здание было специально построено для использования в качестве административного здания и обладает всеми необходимыми параметрами: отличным состоянием, отдельным входом с улицы, современным оборудованием и светом, а также коммуникациями.Площадь здания -755,9 квадратных метров, что позволит вам воплотить любые запросы. Использование нежилого здания также означает, что инвесторы могут выжать максимум из каждого квадратного метра, есть цокольный этаж . Бизнес-центр оснащен всем необходимым для комфортной работы, включая отопление, водоснабжение, канализацию, электричество, газ и охрану. Имеется также парковка, где ваши клиенты и сотрудники могут припарковать автомобиль без проблем.Не упустите свой шанс начать свой успешный бизнес или расширить существующий в Тамбове - приобретите этот уникальный бизнес-центр и процветайте вместе с ним. Обратитесь к нашим специалистам прямо сейчас, чтобы получить более подробную информацию и посмотреть эту недвижимость.

Читать полностью
    Позвонить Написать
    50 000 000 Р652 500 $ или 552 000
    Агент
    +7 (915) 881-03-42
    Начать чат с агентом
    Похожие предложения
    Рассрочка до ввода в эксплуатацию - Фото 1
    Рассрочка до ввода в эксплуатацию - Фото 2
    Рассрочка до ввода в эксплуатацию - Фото 3
    Рассрочка до ввода в эксплуатацию - Фото 4
    Рассрочка до ввода в эксплуатацию - Фото 5
    Рассрочка до ввода в эксплуатацию - Фото 6
    Рассрочка до ввода в эксплуатацию - Фото 7
    Рассрочка до ввода в эксплуатацию - Фото 8
    Рассрочка до ввода в эксплуатацию - Фото 9
    Рассрочка до ввода в эксплуатацию - Фото 10
    Рассрочка до ввода в эксплуатацию - Фото 11
    Рассрочка до ввода в эксплуатацию - Фото 12
    реализуемая площадь 105.4м², 22-й этаж, всего 40 этажей, открытая планировка

    Предложение от застройщика. Старт продаж нового бизнес-центра класса «А» в минуте от метро Молодёжная. МУЛЬТИОФИС Концепция мультиофиса позволит эффективно разделить операционные процессы в рамках одного бизнес-центра. - Фронт-офис: Разместите подразделения,...
    • 105.4 м²
    • A
    • 22/40 эт.
    49 139 588 Р
    Агент
    +7 (495) Показать номер
    Посмотреть контакты
    Бизнес-центр на западе Москвы - Фото 1
    Бизнес-центр на западе Москвы - Фото 2
    Бизнес-центр на западе Москвы - Фото 3
    Бизнес-центр на западе Москвы - Фото 4
    Бизнес-центр на западе Москвы - Фото 5
    Бизнес-центр на западе Москвы - Фото 6
    Бизнес-центр на западе Москвы - Фото 7
    Бизнес-центр на западе Москвы - Фото 8
    Бизнес-центр на западе Москвы - Фото 9
    Бизнес-центр на западе Москвы - Фото 10
    Бизнес-центр на западе Москвы - Фото 11
    Бизнес-центр на западе Москвы - Фото 12
    реализуемая площадь 107.5м², 16-й этаж, всего 40 этажей, открытая планировка

    Предложение от застройщика. Старт продаж нового бизнес-центра класса «А» в минуте от метро Молодёжная. МУЛЬТИОФИС Концепция мультиофиса позволит эффективно разделить операционные процессы в рамках одного бизнес-центра. - Фронт-офис: Разместите подразделения,...
    • 107.5 м²
    • A
    • 16/40 эт.
    50 667 975 Р
    Агент
    +7 (495) Показать номер
    Посмотреть контакты
    Рассрочка до ввода в эксплуатацию - Фото 1
    Рассрочка до ввода в эксплуатацию - Фото 2
    Рассрочка до ввода в эксплуатацию - Фото 3
    Рассрочка до ввода в эксплуатацию - Фото 4
    Рассрочка до ввода в эксплуатацию - Фото 5
    Рассрочка до ввода в эксплуатацию - Фото 6
    Рассрочка до ввода в эксплуатацию - Фото 7
    Рассрочка до ввода в эксплуатацию - Фото 8
    Рассрочка до ввода в эксплуатацию - Фото 9
    Рассрочка до ввода в эксплуатацию - Фото 10
    Рассрочка до ввода в эксплуатацию - Фото 11
    Рассрочка до ввода в эксплуатацию - Фото 12
    реализуемая площадь 107.5м², 18-й этаж, всего 40 этажей, открытая планировка

    Предложение от застройщика. Старт продаж нового бизнес-центра класса «А» в минуте от метро Молодёжная. МУЛЬТИОФИС Концепция мультиофиса позволит эффективно разделить операционные процессы в рамках одного бизнес-центра. - Фронт-офис: Разместите подразделения,...
    • 107.5 м²
    • A
    • 18/40 эт.
    50 667 975 Р
    Агент
    +7 (495) Показать номер
    Посмотреть контакты
    Рассрочка до ввода в эксплуатацию - Фото 1
    Рассрочка до ввода в эксплуатацию - Фото 2
    Рассрочка до ввода в эксплуатацию - Фото 3
    Рассрочка до ввода в эксплуатацию - Фото 4
    Рассрочка до ввода в эксплуатацию - Фото 5
    Рассрочка до ввода в эксплуатацию - Фото 6
    Рассрочка до ввода в эксплуатацию - Фото 7
    Рассрочка до ввода в эксплуатацию - Фото 8
    Рассрочка до ввода в эксплуатацию - Фото 9
    Рассрочка до ввода в эксплуатацию - Фото 10
    Рассрочка до ввода в эксплуатацию - Фото 11
    Рассрочка до ввода в эксплуатацию - Фото 12
    реализуемая площадь 107.5м², 18-й этаж, всего 40 этажей, открытая планировка

    Предложение от застройщика. Старт продаж нового бизнес-центра класса «А» в минуте от метро Молодёжная. МУЛЬТИОФИС Концепция мультиофиса позволит эффективно разделить операционные процессы в рамках одного бизнес-центра. - Фронт-офис: Разместите подразделения,...
    • 107.5 м²
    • A
    • 18/40 эт.
    50 667 975 Р
    Агент
    +7 (495) Показать номер
    Посмотреть контакты
    Бизнес-центр на западе Москвы - Фото 1
    Бизнес-центр на западе Москвы - Фото 2
    Бизнес-центр на западе Москвы - Фото 3
    Бизнес-центр на западе Москвы - Фото 4
    Бизнес-центр на западе Москвы - Фото 5
    Бизнес-центр на западе Москвы - Фото 6
    Бизнес-центр на западе Москвы - Фото 7
    Бизнес-центр на западе Москвы - Фото 8
    Бизнес-центр на западе Москвы - Фото 9
    Бизнес-центр на западе Москвы - Фото 10
    Бизнес-центр на западе Москвы - Фото 11
    Бизнес-центр на западе Москвы - Фото 12
    реализуемая площадь 107.5м², 16-й этаж, всего 40 этажей, открытая планировка

    Предложение от застройщика. Старт продаж нового бизнес-центра класса «А» в минуте от метро Молодёжная. МУЛЬТИОФИС Концепция мультиофиса позволит эффективно разделить операционные процессы в рамках одного бизнес-центра. - Фронт-офис: Разместите подразделения,...
    • 107.5 м²
    • A
    • 16/40 эт.
    50 667 975 Р
    Агент
    +7 (495) Показать номер
    Посмотреть контакты

    Не нашли подходящего объявления?

    Оставьте заявку, и наши риэлторы подберут офис в районе Тамбова

    (0)