Реализация объекта недвижимости приостановлена

Информация о квартире

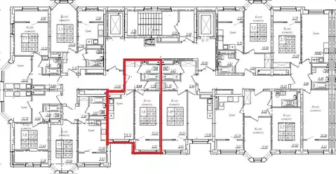
43.0 м2
Площадь
16.0 м2
Жилая
13.0 м2
Кухня
1
Комната
1
Этаж
10
Этажность

Дополнительная информация

Тип дома
кирпичный
Развернуть

1-к кв. Тамбовская область, Тамбов городской округ, пос. Строитель ул. ...

Последняя Продается просторная 1-комн. квартира с большой кухней.Срок сдачи 3 кв. 2025Кирпичный дом.Индивидуальное отопление.Ипотека, наличные, маткапитал.•Срок сдачи дома по ул. Придорожная, д.3Г - 3 кв. 2056 г.•Индивидуальное отопление: В домах реализован современный проект индивидуального газового отопления. Позволяющий жильцам самостоятельно управлять обогревом своих домов и значительно экономить на коммунальных платежах•Площадки для досуга и игр: Проектом предусмотрена установка во дворах детских площадок для игр и отдыха, баскетбольно-волейбольной площадки, благоустройство и озеленение придомовой и дворовой территории•Просторные входные группы и лифтовые холлы: Современные подъезды с высокими потолками, дизайнерской отделкой и с двумя входами: со двора и улицы•Система видеонаблюдения•Двор-парк без машин: Благодаря продуманной планировке придомового пространства, в МЖК-Парк будет уютный и тихий внутренний двор с пространством для активного отдыха и местами для прогулок

Читать полностью

    Реализация объекта недвижимости приостановлена

    Не нашли подходящего объявления?

    Оставьте заявку, и наши риэлторы подберут квартиру в новостройке в районе Строителя

    (0)