2 250 000 Р 27 830 $ или 23 960

Информация о коттедже

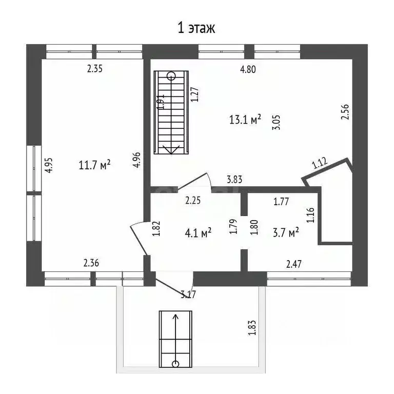
34 м2
Площадь
2
Этажность
4 cоток
Участок

Дополнительная информация

Дом продаётся вместе с участком
есть
Развернуть
Агент
+7 (910) 651-59-94
Начать чат с агентом

Дом в Тамбовская область, Тамбовский муниципальный округ, с. Тулиновка ...

ПРЕДЛАГАЕТСЯ К ПРОДАЖЕ ДОМ В ТУЛИНОВКЕ С ВИДОМ НА ЛЕС О ДОМЕ:Общая площадь 34,1 кв. м + мансарда на 2-ом этажеДом кирпичный, есть печка и камин.Плодоносящие деревья.ИНФРАСТРУКТУРА:Прямо из окон виден лес, в пешей доступности школа, садик, больница, ЗАГС, лагеря, пункт выдачи ОЗОН.Если вы хотите купить дом на выгодных условиях, мы готовы предложить вам юридическую помощь в проведении сделкиСниженная процентная ставка по ипотеке Скидка на страхование до 50 Электронная регистрация в офисе компании без посещения МФЦЗвоните или пишите в чат в любое времяСпециалист по недвижимости АН Этажи Полина Тарасова Код пользователя: 141797Номер в базе: 9829088

Читать полностью

    Для того, чтобы купить 2-этажный коттедж по адресу: Тулиновка, ул. Урицкого, 19, позвоните по телефону +7 (910) 651-59-94. Торопитесь! Объявление №50016455009 о продаже двухэтажного коттеджа опубликовано 09 октября 2025.

    Позвонить Написать
    2 250 000 Р27 830 $ или 23 960
    Агент
    +7 (910) 651-59-94
    Начать чат с агентом
    Похожие предложения
    Дом в Тамбовская область, Тамбовский муниципальный округ, с. Черняное ... - Фото 1
    Дом в Тамбовская область, Тамбовский муниципальный округ, с. Черняное ... - Фото 2
    1 этаж, общая площадь 69м², участок 42 сотки

    Продается великолепный дом с земельным участком в живописном селе Черняное — идеальное место для комфортной жизни и полноценного отдыха Этот уютный дом расположен на центральной улице, что обеспечивает удобный доступ ко всем необходимым объектам инфраструктуры....
    • 1 эт.
    • 69 м²
    • 42 сот.
    2 300 000 Р
    Агент
    +7 (980) Показать номер
    Посмотреть контакты
    Дом в Тамбовская область, Тамбов городской округ, с. ... - Фото 1
    Дом в Тамбовская область, Тамбов городской округ, с. ... - Фото 2
    1 этаж, общая площадь 79м², участок 3 сотки

    Продам дом о особняк в Покрово- Пригородное, дом деревянный лежаковый, фундамент высокмй, крыша покрыта шифером, комнаты изолированы нужен ремонт. Дом освобожден,Один собственник.
    • 1 эт.
    • 79 м²
    • 3 сот.
    2 250 000 Р
    Агент
    +7 (910) Показать номер
    Посмотреть контакты
    Дом в Тамбовская область, Знаменка рп ул. Советская, 168 (52 м) - Фото 1
    Дом в Тамбовская область, Знаменка рп ул. Советская, 168 (52 м) - Фото 2
    1 этаж, общая площадь 52м², участок 4 сотки

    Продается дом в р.п. ЗнаменкаО ДОМЕ: Общая площадь дома 53 кв.м. состоит из трех комнат изолированных комнат, санузел, кухняГаз заведен в дом. Электричество заведено и функционируетОтопление от газового котлаВода центральная и есть дополнительная скважина,...
    • 1 эт.
    • 52 м²
    • 4 сот.
    2 300 000 Р
    Агент
    +7 (980) Показать номер
    Посмотреть контакты
    общая площадь 59м², участок 5 соток

    Продается часть дома с земельным участком, представляющая собой перспективный объект для капиталовложения. Помещение требует проведения косметического ремонта, что позволяет новому владельцу адаптировать пространство под личные предпочтения без необходимости...
    • 59 м²
    • 5 сот.
    2 300 000 Р
    Агент
    +7 (988) Показать номер
    Посмотреть контакты
    Дом 118 кв.м. на участке 426кв.м. - Фото 1
    Дом 118 кв.м. на участке 426кв.м. - Фото 2
    Дом 118 кв.м. на участке 426кв.м. - Фото 3
    Дом 118 кв.м. на участке 426кв.м. - Фото 4
    Дом 118 кв.м. на участке 426кв.м. - Фото 5
    Дом 118 кв.м. на участке 426кв.м. - Фото 6
    Дом 118 кв.м. на участке 426кв.м. - Фото 7
    Дом 118 кв.м. на участке 426кв.м. - Фото 8
    Дом 118 кв.м. на участке 426кв.м. - Фото 9
    Дом 118 кв.м. на участке 426кв.м. - Фото 10
    Дом 118 кв.м. на участке 426кв.м. - Фото 11
    Дом 118 кв.м. на участке 426кв.м. - Фото 12
    Дом 118 кв.м. на участке 426кв.м. - Фото 13
    Дом 118 кв.м. на участке 426кв.м. - Фото 14
    Дом 118 кв.м. на участке 426кв.м. - Фото 15
    Дом 118 кв.м. на участке 426кв.м. - Фото 16
    Дом 118 кв.м. на участке 426кв.м. - Фото 17
    Дом 118 кв.м. на участке 426кв.м. - Фото 18
    Дом 118 кв.м. на участке 426кв.м. - Фото 19
    деревянный дом, 2 этажа, общая площадь 118м², жилая 50.5м², кухня 18.7м², кол-во комнат 3, пластиковые стеклопакеты, участок 4.3 сотки

    Продается дом площадью 118 кв. м. на участке 426 кв. м. и хозблок 12 кв. м. В тихом, красивом, экологически чистом районе. Тамбовская область, Сосновский район, рабочий посёлок Сосновка, улица Мичурина, 60 (Энергетиков). Дом тёплый, уютный, щитовой....
    • 2 эт.
    • 118 м²
    • 4.3 сот.
    • 3-ком
    2 300 000 Р
    PRO
    +7 (905) Показать номер
    Посмотреть контакты

    Не нашли подходящего объявления?

    Оставьте заявку, и наши риэлторы подберут купить дом в районе Тулиновки

    (0)